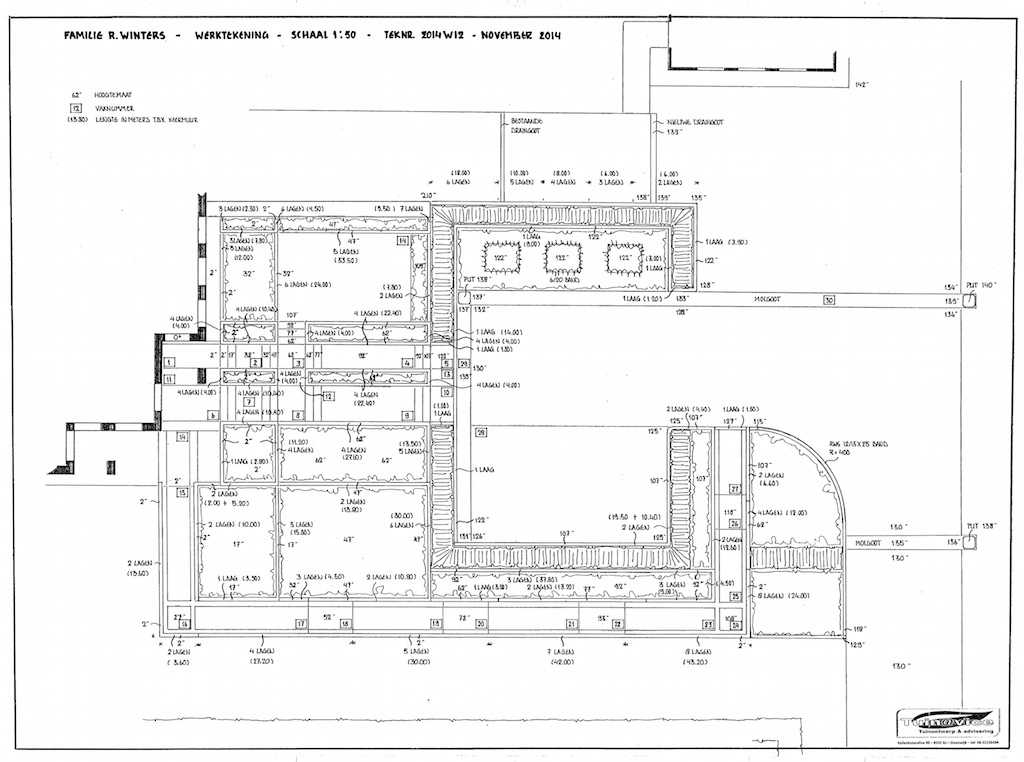
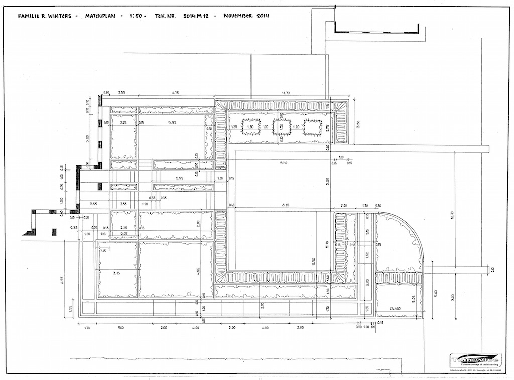
De opdracht bij deze vrijstaande woning in Eesveen was om een ontwerp van de entree te maken. De uitdaging hierbij was het hoogte verschil van bijna 2 meter.
Een van de eisen was dat de entree vanaf de parkeerplaats door middel van een hellingbaan ook voor mindervaliden te bereiken zou zijn.
Voor de avondzon is er een terras nabij de entree gerealiseerd.
Door het plaatsen van (mol)goten en rioleringsputten wordt het overtollige regenwater afgevoerd.