Voor- en achtertuin Almere
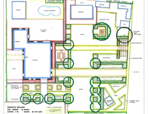
Bij deze woning in Almere hebben wij het ontwerp voor de voor- en achtertuin gemaakt. De tuin heeft een warme mediterrane uitstraling. Door de pergola (constructie) wordt de achtertuin in tweeën gedeeld. Het gedeelte bij de woning waar de meeste zon is, wordt gebruikt voor terras en spelen. Het achterste gedeelte van de tuin is bestemd voor de Koikarper hobby.
De vijver voor de Koikarpers is ruim 2 meter diep en steekt gedeeltelijk boven het terras uit. Er is een glazen venster aangebracht in de vijvermuur waardoor je de vissen vanaf het terras ziet zwemmen. Vanuit de woning zorgen de bestratingslijnen ervoor dat je aandacht automatisch naar het glazen venster van de vijver wordt getrokken.
De opdrachtgever heeft de tuin inclusief de vijver zelf aangelegd.





