Particuliere tuin ’t Harde

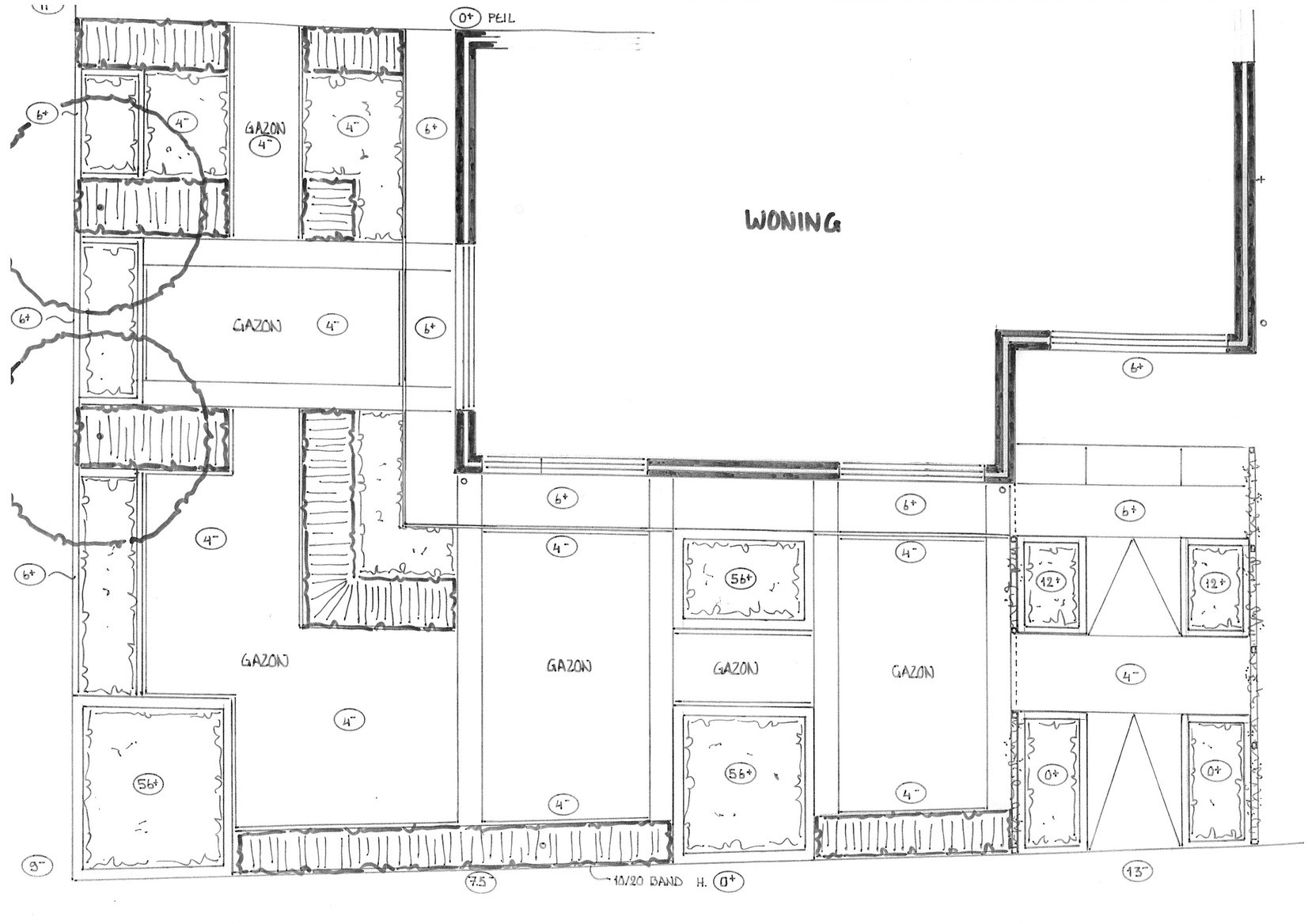
De opdracht was om een strakke tuin te 0ntwerpen met verhoogde plantenbakken, open van karakter zodat er vanuit de woning veel zicht is op de tuin en de omgeving. Daarnaast was de wens veel bloeiende bloemen en planten.

Met de planvorming moest ook rekening worden gehouden met de kinderen en hun vriendjes. De huidige tuin was één groot speeloord. De nieuwe tuin moest daarom zodanig ingericht worden dat de kinderen ook ruimte zouden behouden om te spelen.

De achtertuin is het zonnigst en wordt omsloten voor meer privacy. In de achtertuin gaat het meest geleefd worden. Hier dient ook het grote terras te worden gesitueerd.

De tuin is in twee fases door de eigenaar zelf gerealiseerd. Tuin@vice heeft  de bestratingsmaterialen geleverd en  advies en begeleiding gegeven.

Het plantwerk en de gazonaanleg hebben wij gezamenlijk met de opdrachtgever uitgevoerd. Waarbij wij de beplanting en graszoden hebben mogen leveren.

Een half jaar na de realisatie is deze tuin in de prijzen gevallen.
De jury kende de tuin de 5e prijs toe. Er waren 51 tuinen genomineerd.

Een opmerkelijke prestatie want de tuin was net aangelegd en nog zeker niet volgroeid en op z’n mooist.

Het beoordelingsrapport van de jury was als volgt:

Het algemene beeld 7,8
Het ontwerp van de tuin 8,0
De staat van onderhoud 7,8
Kleur en texturen van de beplanting 7,3

Toch een mooi resultaat voor een tuin die net aangelegd en beplant is!